home
about
exhibitions + media
blog
art
design
community
teaching + workshops
Menu
richard briggs
home
about
exhibitions + media
blog
art
design
community
teaching + workshops
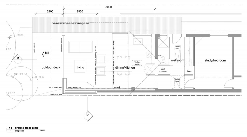
marrickville house
2016